Inwestycje
Data opublikowania: 2018-10-26
Inwestycje w ochronę środowiska - podsumowanie kadencji 2014 - 2018
W latach 2015 – 2018 zakupiono i nasadzono:
- 531 drzew liściastych,
- 124 drzewa iglaste,
- 1613 krzewów liściastych,
- 70 drzew owocowych,
- 2817 krzewów iglastych,
- 1250 m2 trawnika wraz z nawodnieniem na pl. 20 Października w Mosinie.
Nasadzenia prowadzone były w ramach rekompensaty ubytku zieleni w środowisku z tytułu uzyskanych decyzji Starosty Poznańskiego na usunięcie drzew i krzewów z nieruchomości stanowiących własność Gminy Mosina, także do wykonania zagospodarowania terenów zieleni miejskiej:
- skweru przy wejściu głównym do Mosińskiego Ośrodka Kultury,
- skweru przy zbiegu ul. Piotr Mocka i Rzeczypospolitej Mosińskiej w Mosinie,
- pasa zieleni na ul. Nektarowej w Krośnie,
- skarpy z wieżą widokową na Gliniankach,
- skweru przy ul. Topolowej/Czarneckiego,
- ul. Dworcowej i Kolejowej,
- Targowej i Czereśniowej,
- Targowej i Wiatrowej w Mosinie
- Polnej i Strzeleckiej w Krośnie
- zagospodarowania terenów zieleni na nieruchomościach stanowiących własność Gminy w Mosinie: pl. 20 Października, ul. Gałczyńskiego, ul. Marcinkowskiego, skwer u zbiegu ul. Kasprowicza i Leszczyńskiej, Ośrodek Sportu i Rekreacji, ul. Jasna, ul. Krasickiego, pożegowskie Glinianki,
- zagospodarowania terenów zieleni na nieruchomościach stanowiących własność Gminy na terenach wiejskich: ul. Poznańska w Rogalinie, teren klubu sportowego w Wiórku, teren przy budynku wielofunkcyjnym w Pecnej, ul. Nektarowa i ul. Piaskowa w Krośnie, teren przy placu zabaw w Mieczewie.
Nasadzenia zieleni są jednym z ważnych elementów działań Gminy Mosina podejmowanych na rzecz ochrony środowiska i walki ze smogiem.
O innych działaniach Gminy Mosina na rzecz walki ze smogiem:
Wykonane zostały także koncepcje zagospodarowania:
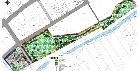
- terenu rekreacyjnego po północnej stronie Kanału Mosińskiego w rejonie ul. Wagnera
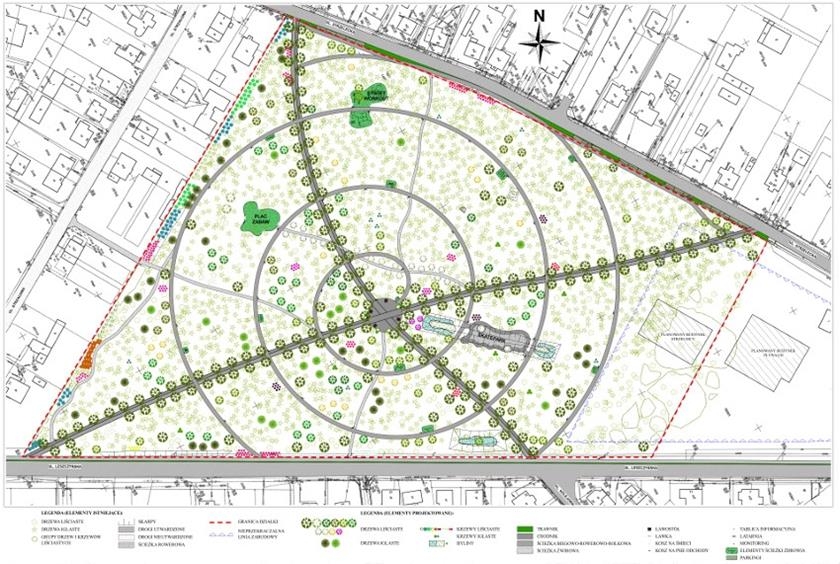
- Parku Gminnego „Strzelnica"
Oprac. Joanna Nowaczyk
Fot. Przykładowe nasadzenia i zagospodarowania skwerów w roku 2017







